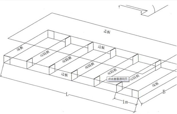
雙隔板雷諾護墊是厚度在0.15-0.5m(含0.5m)的網箱結構。由特殊防腐處理的低碳鋼絲經機器編織成的六邊形雙絞合鋼絲網,制作成符合要求的工程構件,其具有更優于網箱的力學能力。
雙隔板雷諾護墊沿長度方向每間隔1米采用雙隔板格成獨立的單元,雷諾護墊為一次成型生產,除蓋板外,邊板,端板,隔板及底板由一張連續不裁斷的網面組成,不可采用獨立的雙層折疊網面通過絞合在底板上作為雙隔板。
雙隔板雷諾護墊技術參數:
網孔型號:60*80、70*90、80*100、90*110、100*120、110*130mm
鋼絲直徑:2.0-4.0mm
最小鍍層量:≥215g/㎡
常用網箱尺寸:6*2*0.3m、4*2*0.25m、3*1*0.17m等。(具體尺寸可以根據工程設計要求定做)
用途:用作河道、岸坡、路基邊坡護坡結構。既可防止河岸遭水流、風浪侵襲而破壞,又實現了水體與坡下土體間的自然對流交換功能,達到生態平衡。坡上植綠可增添景觀、綠化效果。
雙隔板雷諾護墊特點:
1. 提高河床邊坡的穩定性
2. 保護河床防止沖刷
3. 提供河岸粗糙系數(m)之預定值
4. 護坡、護岸的綠化與生態保護、道的開發與治理,涉及到等截面鋪設護
雙隔板雷諾護墊生產廠家,請選擇步鑫網業,我們是生產型工廠,全部產品都由我廠車間生產,省去中間商環節,價格在同類產品中更具有競爭優勢。技術力量雄厚,質量檢測體系完善,采用優質的原材料,嚴把質量關,歡迎您隨時來廠參觀考察。 咨詢訂購電話:15131835563、15103289922
